Student Work
Course Description
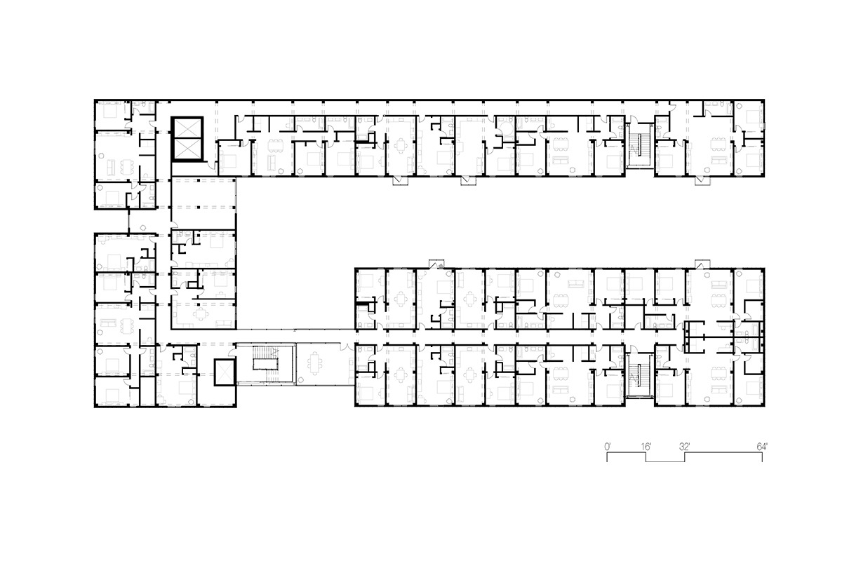
CONIFER
Students: Chlo Duttry
Studio: ARCH 503 — Rick Mohler — Autumn 2024
Location: Seattle, Washington
Project Description
Conifer reimagines urban housing in Rainier Beach, Seattle, by uniting sustainability, community, and inclusivity. This five-story mixed-use complex supports residents of all ages, from young families to older adults, through a range of housing options and generous shared spaces. The design responds to the neighborhood’s need for accessible housing while promoting vibrant, daily interactions between generations.

Rendering of the Conifer community room.
At the heart of Conifer is a lush green stormwater infrastructure courtyard that manages runoff while creating a calm, communal outdoor retreat. Residents share amenities including a large daycare center, fitness gym, and community kitchens that encourage social connection and resource sharing. Housing units range from studios to three-bedroom layouts, accommodating diverse household sizes. The building’s mixed-use nature and sustainable strategies strengthen the local fabric by reducing environmental impact and fostering a sense of belonging. Conifer offers a model for how urban development can serve both people and planet in equal measure.

Rendering of the Conifer street front.
Images from the CONIFER.









