Student Work
Course Description
PEMBERTON MILL
Students: Brendan Colford
Studio: ARCH 507 — Matt Catrow and Susan Jones — Winter 2025
Location: British Coloumbia, Canada
Project Description
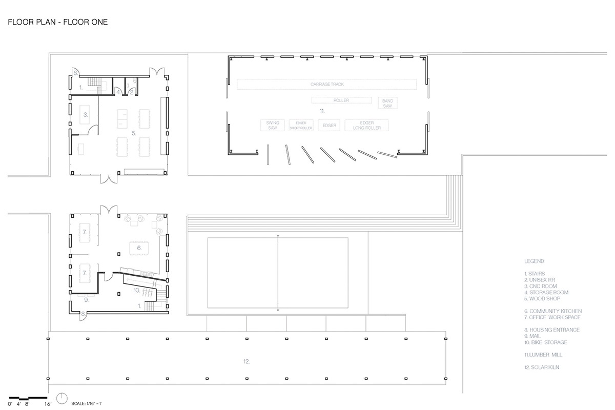
Pemberton Mill is more than a sawmill — it’s a hub for community resilience, sustainable resource use, and wildfire recovery. Located in the heart of a region severely impacted by forest fires, the site serves as both a processing center for salvaged timber and a home base for seasonal workers, sawmill operators, firefighters, educators, and forest maintenance crews. Its location ensures quick response to fire events while also fostering long-term community and environmental stewardship.

Pemberton Mill Circularity Diagram.
The site’s three buildings — the sawmill, solar kiln, and workforce lodge — work in tandem to process fire-damaged wood and provide essential services. The workforce lodge, built from cross-laminated timber salvaged from Vancouver’s First Nations Elementary School, is the centerpiece. The first floor houses a public woodshop, administrative offices, and a breezy dogtrot leading to the river. Elevated above the floodplain, the upper floors offer 13 single rooms, shared facilities, a large communal kitchen, and lounge spaces under a dramatic barrel-vault ceiling. In summer, pivot doors open to a sun-filled courtyard for recreation and gatherings. By merging housing, production, and public space, Pemberton Mill becomes a place where recovery work, sustainable forestry, and community life thrive together.

Pemberton Mill Site Plan.

Pemberton Mill Front Entrance.
Images from PEMBERTON MILL.









